Ferienhaus Elsass - Urlaub Elsass
Ferienhaus Krauffel 4 - 8 pers im Elsass - Ferienhaus in Meistratzheim
Ferienhaus Krauffel 4 - 8 personen im Elsass nahe Obernai
auf die Merkliste setzen...




- Ferienhaus mit 120 qm für 8 Personen
- 4 Schlafzimmer
- Urlaub mit Hund nicht möglich
- Ausstattung: GartenGeschirrspülerWaschmaschineInternet / WLAN
Das Ferienhaus bietet :
Im Erdgeschoss , eine gut ausgestattete Küche , ein Wohnzimmer , ein Esszimmer , ein Schlafzimmer mit einem Bett für 2 Personen , ein Bad mit Wanne ,Dusche Waschbecken, Bidet , ein separates WC .
Im Obergeschoss , 2 Schlafzimmer mit jedem 2 Betten für eine Person , ein Schlafzimmer mit einem Bett für zwei personen und ein Schlafsofa , ein Waschraum mit Dusche,Waschbecken und WC , ein Lokal mit Waschmaschine und Trockenleine.
Die Betten sind fristig bezogen bei ihrer Ankunft .
Aus Respekt vor allen unsern Mietern , sind Haustiere nicht erlaubt.
Für Mehr Hinweise oder Fotos und Belegungsplan Können sie uns anruhfen unter 0033388955192
Wir sprechen Deutsch
Lage & Umgebung
auf dem Land
Durch seine günstige Lage zwischen Strasbourg und Colmar , den Vogesen uns dem Schwarzwald ist dieses Ferienhaus der ideale Ausgangspunkt für ihren Urlaub im Elsass.
Die nahe elsaessische Weinstrasse (6 km entfernt ) Führt sie über 80 km duch die Weigegend wo sie
typische Dörfer entdecken so wie Obernai , Ribeauvillé , Hunawihr , Riquewihr Kaysersberg und Eguisheim
Die nahe elsaessische Weinstrasse (6 km entfernt ) Führt sie über 80 km duch die Weigegend wo sie
typische Dörfer entdecken so wie Obernai , Ribeauvillé , Hunawihr , Riquewihr Kaysersberg und Eguisheim


Ferienhaus



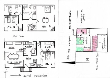
der Grundriss





Ausstattung
Allgemein
WaschmaschineParken auf dem Grundstück
Aussenbereich
GartenGrillplatz
Wohnbereich
Zentral-HeizungInternet / WLAN
Wohnzimmer
DVD-Spieler
Küche
GeschirrspülerBackofenMikrowelleKühlschrank m. Gefrierfach
Freizeit-Möglichkeiten
Wandern
Odilienberg 20 km , Haut-Koenigsbourg 35 km ,Strasbourg 25 km , Colmar 45 km , Europapark 35 km
Preisliste
Von
Bis
Preis / Woche
bei einer Belegung mit Personen
Preis / Woche je zusätzliche Person
31.03.2020
30.06.2020
550 EUR
alle
-
30.06.2020
01.09.2020
600 EUR
alle
-
01.09.2020
11.11.2020
550 EUR
alle
-
Endreinigung (fakultativ) auf Wunsch 40 Euros
Zusatzkosten:Alle Nebenkosten sind Imbegriffen in der Miete.
Kurtaxe 0,90 euro pro Nacht pro erwachsene Person
Anfrage / Kontakt
Vermieter : Clément Krauffel
Telefon : 0033(0)388955192
